[prev][index][next]

Habitat for wading birds and herps. Water source for deer (tracks on shore). No surface discharge but does contribute to groundwater recharge.

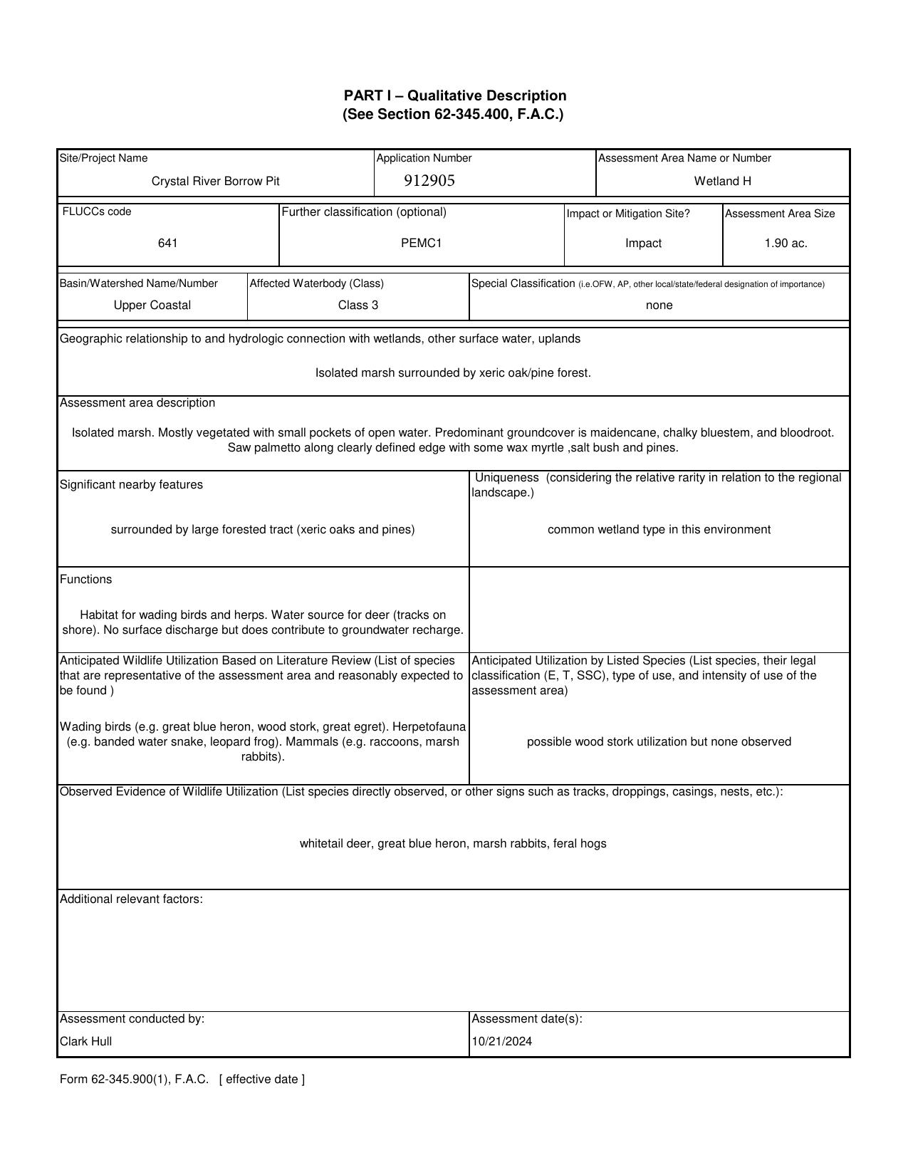
Part-I-Qualitative-Description-2024-10-21
Comment and CWA Request re Suncoast Parkway 2 Seg 3A --Stop the Sand Mine Committee
6 November 2025
 
Habitat for wading birds and herps. Water source for deer (tracks on shore). No surface discharge but does contribute to groundwater recharge.
smaller PDF